◆更新日:2026年4月1日 ◆次回更新日:2026年5月1日
高岡市京町モデルB-2
まちなか居住の一軒家!家事に時間をかけない「時短の家」
3月28日(土)グランドオープン!
高岡のまちなかで暮らしませんか?
成美小学校まで約350m
子育て世代にも、単身世帯にもおすすめ!
今、人気のガス衣類乾燥機「乾太くん」付きでお洗濯がラクラク♪
土地+建物販売価格(建物消費税10%、負担金含む)
2,380万円
付帯工事





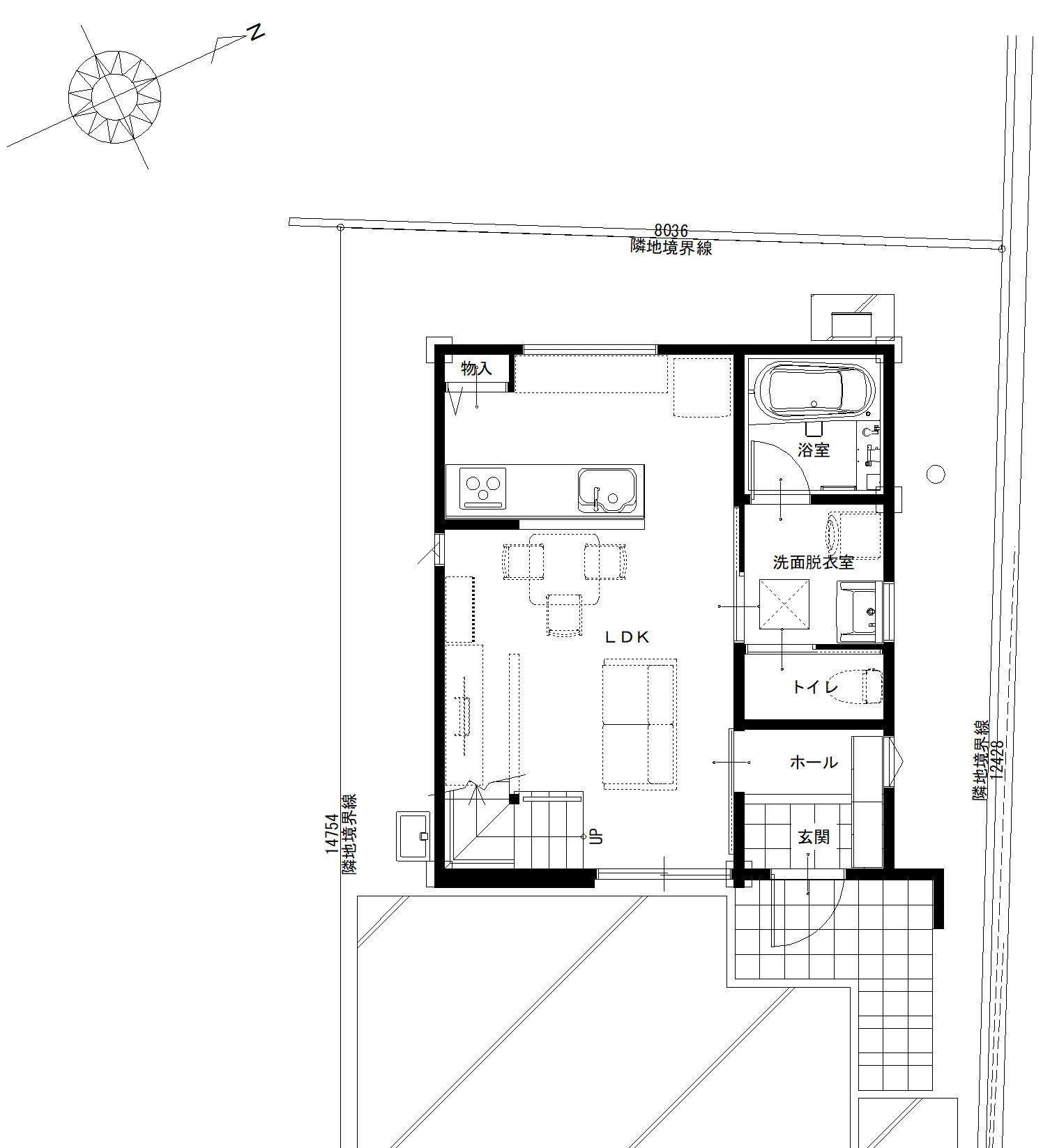
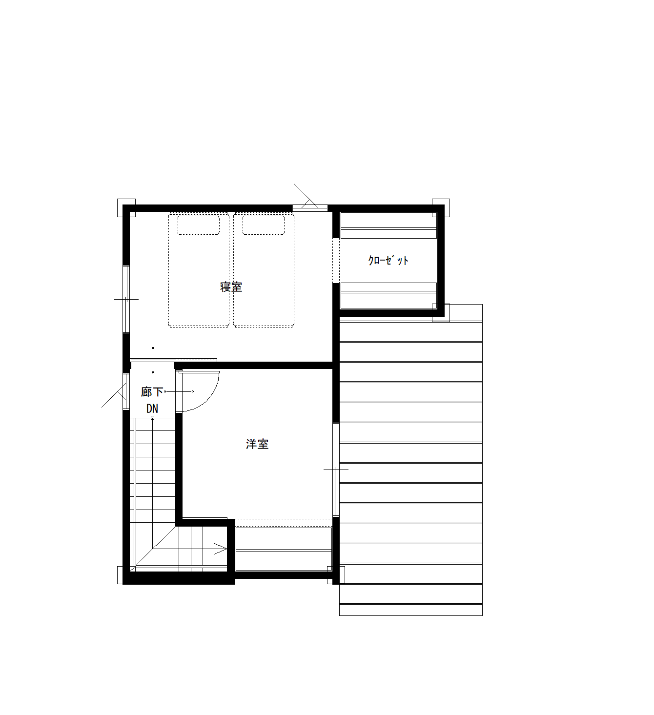
間取図
1F

2F

| 1F床面積 | 34.78㎡(10.52坪) |
|---|---|
| 2F床面積 | 26.49m²(8.01坪) |
| 延床面積 | 61.27m²(18.53坪) |
| 敷地面積 | 112.54m²(34.04坪) |
建築確認番号/高岡市建築主事202500075号
物件概要
| 所在地 | 高岡市京町355番8の一部(B-2) | ||
|---|---|---|---|
| 上水道 | 公営水道 | 下水道 | 公共下水道 |
| 電気 | 北陸電力 | ガス | 都市ガス |
| 用途地域 | 第1種住居地域 | ||
| 販売形態 | 売主 | ||
| 完成年月 | 2026年1月完成予定(引渡し可能時期:2026年3月以降) | ||
生活環境
| 交通 | 万葉線急患医療センター前まで | 約1000m(徒歩約13分) |
|---|---|---|
| 教育施設 | 成美小学校 | 約350m(徒歩約5分) |
| 志貴野中学校 | 約1375m(徒歩約 18分) | |
| ショッピング | ヒラキストア大坪店 | 約1000m(徒歩約13分) |
| クスリのアオキ上四屋店 | 約900m(徒歩約12分) |











コンパクトで生活しやすい動線で、家事ラクを実現!ベージュやブラウンをベースにしたナチュラルでぬくもりのある空間です。リビング階段のアイアン手摺がアクセントになっていますよ!