◆更新日:2025年11月1日 ◆次回更新日:2025年12月1日
高岡市京町モデルB-1
「暮らし」も「住まい」もよりコンパクトにより便利に
高岡のまちなか京町で暮らしませんか?
成美小学校まで約350m!
子育て世代にも単身世帯にもおすすめ!
コンパクトな生活動線×収納力で家事ラクを叶えます。
今、話題のガス衣類乾燥機「乾太くん」付きで、洗濯もラクラク♪
土地+建物販売価格(建物消費税10%、負担金含む)
2,475万円

付帯工事





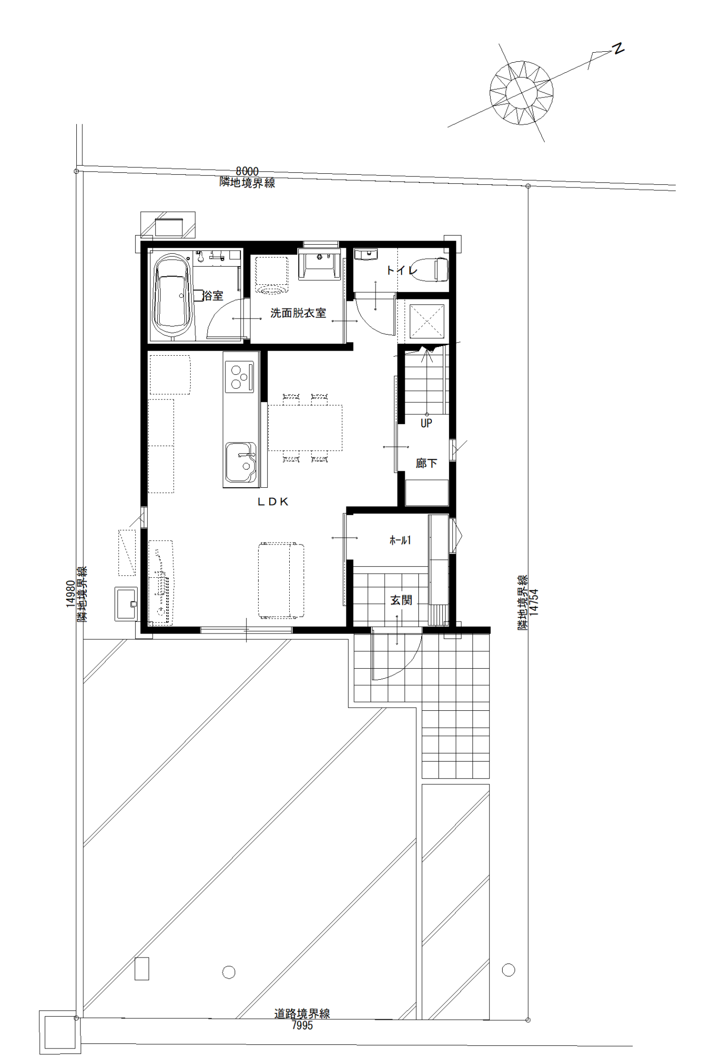
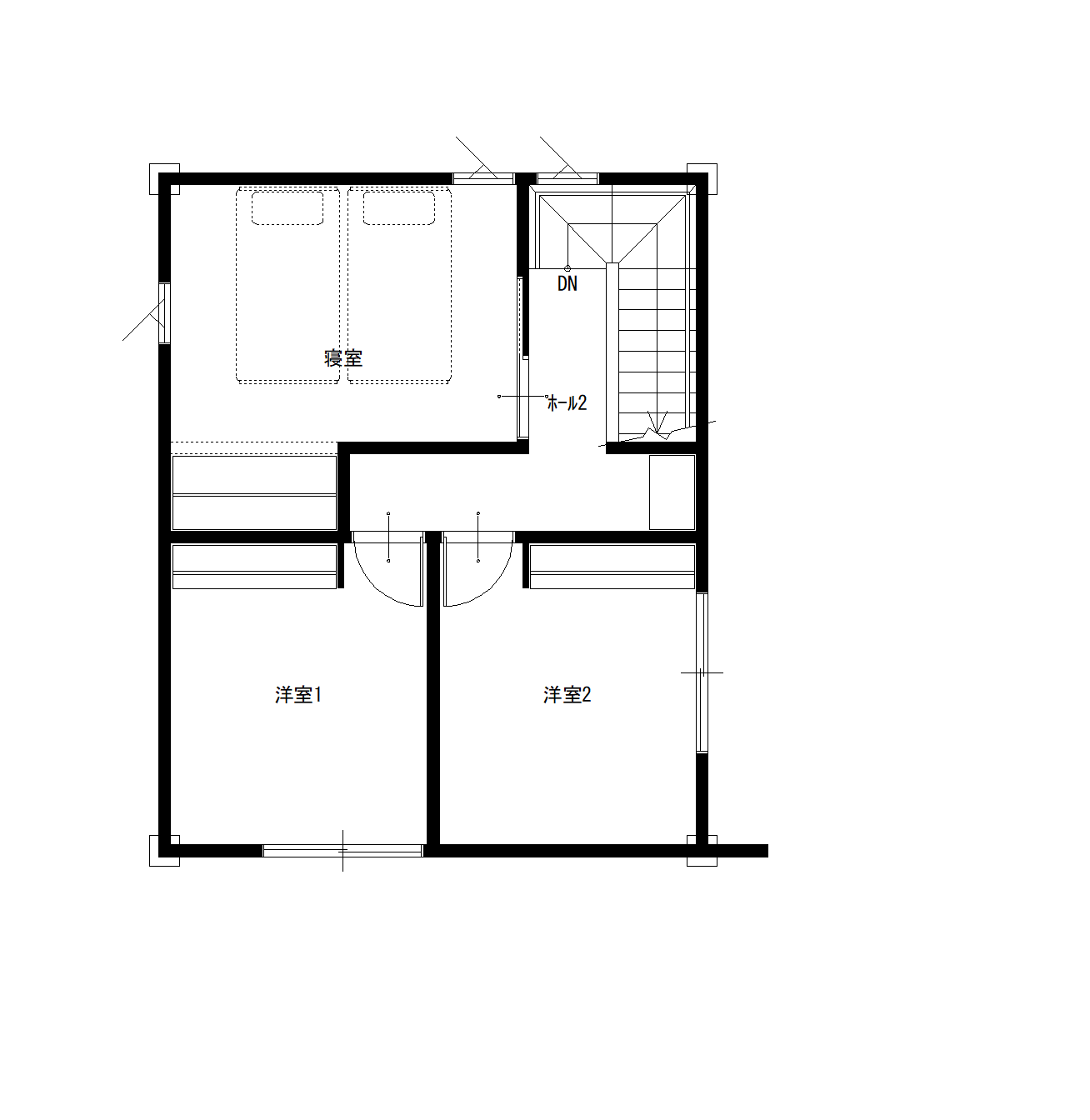
間取図
1F

2F

| 1F床面積 | 37.26㎡(11.27坪) |
|---|---|
| 2F床面積 | 37.26m²(11.27坪) |
| 延床面積 | 74.52㎡(22.54坪) |
| 敷地面積 | 118.86m²(35.95坪) |
建築確認番号/高岡市建築主事 第202500074号
物件概要
| 所在地 | 高岡市京町355番8の一部 | ||
|---|---|---|---|
| 上水道 | 公営水道 | 下水道 | 公共下水道 |
| 電気 | 北陸電力 | ガス | 都市ガス |
| 用途地域 | 第1種住居地域 | ||
| 販売形態 | 売主 | ||
| 完成年月 | 2026年3月(引渡可能時期:2026年3月末以降) | ||
生活環境
| 交通 | 万葉線急患医療センター前まで | 約1000m(徒歩約13分) |
|---|---|---|
| 教育施設 | 成美小学校 | 約350m(徒歩約5分) |
| 志貴野中学校 | 約1375m(徒歩約 18分) | |
| ショッピング | ヒラキストア大坪店 | 約1000m(徒歩約13分) |
| クスリのアオキ上四屋店 | 約900m(徒歩約12分) |

1階は、トレンドのグレー色をベースとしたシンプルでスタイリッシュな空間。ブラック塗装のスチール照明がオシャレなアクセントに!2階はより落ち着いたダークな色合いで落ち着いたプライベート空間を楽しめます。