◆更新日:2026年4月1日 ◆次回更新日:2026年5月1日
高岡市蓮花寺モデル
創エネの家
イニシャルコストもランニングコストも賢く抑えて未来まで続くスマートライフ。
・毎日のエネルギーを「つくる」「ためる」「つかう」SO-RA FARM システム(家庭用燃料電池エネファーム+太陽光パネル)
・ご自宅で発電した電気を活用したLDK床暖房で冬季も快適
・家族でもひとりでもくつろげるLDK一角のタタミヌック
・収納たっぷりでストレスフリー
土地+建物販売価格(建物消費税10%、負担金含む)
3,420万円


付帯工事









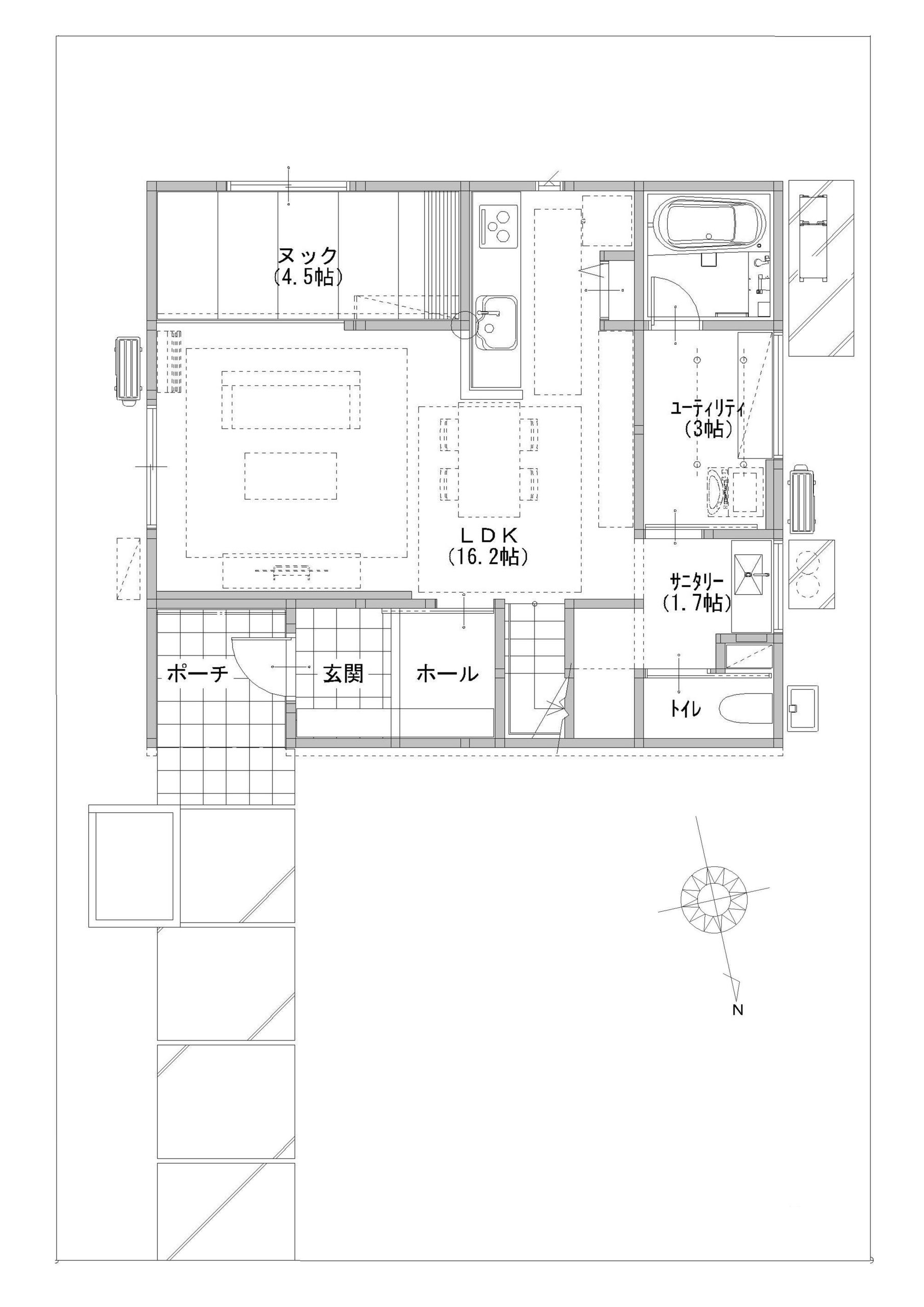
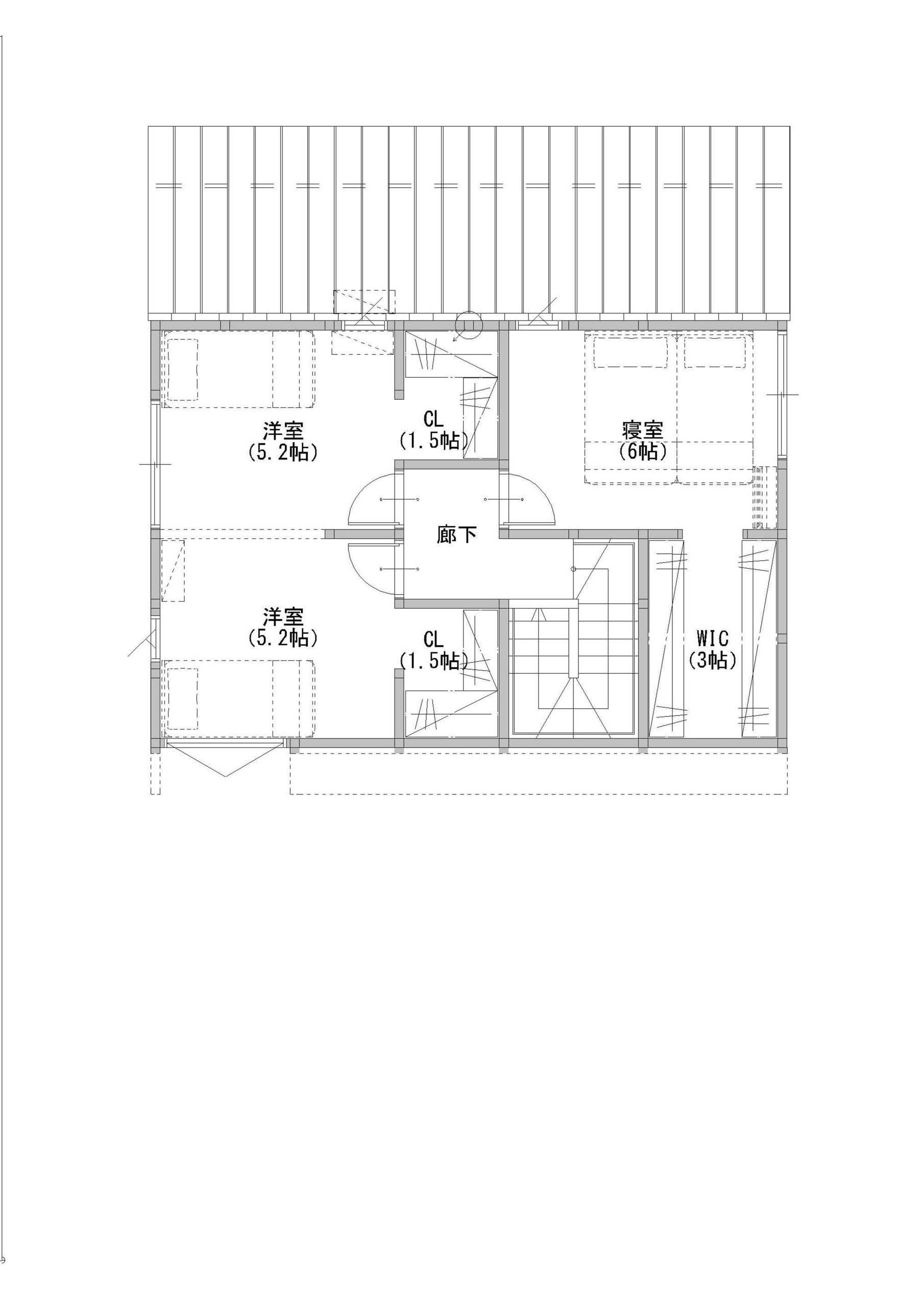
間取図
1F平面図

2F平面図

| 1F床面積 | 56.31㎡(17.03坪) |
|---|---|
| 2F床面積 | 44.71m²(13.52坪) |
| 延床面積 | 101.02m²(30.55坪) |
| 敷地面積 | 171.51m²(51.57坪) |
建築確認番号/高岡市建築主事第202500073号
物件概要
| 所在地 | 高岡市蓮花寺63番5 | ||
|---|---|---|---|
| 上水道 | 公営水道 | 下水道 | 公共下水道 |
| 電気 | 北陸電力 | ガス | 個別プロパン |
| 用途地域 | 第一種中高層住居専用地域 | ||
| 工法・構造 | 木造軸組 | ||
| 販売形態 | 売主 オダケホーム(株) | ||
| 完成年月 | 2026年2月(引渡可能時期:2026年3月以降) | ||
道路:公道幅員6m(舗装道路)
生活環境
| 交通 | 蓮花寺バス停まで |
約540m (徒歩約7分) |
|---|---|---|
| 教育施設 | 野村小学校まで |
約1,100m |
| 芳野中学校まで |
約1,400m (徒歩約8分) |
|
| ショッピング | 大阪屋ショップまで |
約350m |
| セブンイレブンまで |
約400m |





















SO-RA FARMで地球環境に配慮しながら電気代も節約。もしもの時も安心のレジリエンス機能も備え未来基準の快適な住まいを目指しました。
徒歩5分圏内の県道57号線沿線エリアに商業施設がずらりと充実!イオンモール高岡へのアクセスもスムーズな立地で、日々を便利に楽しく過ごせる住環境です。